Barbora Kmoníčková
MICHAEL – SŠ a VOŠ reklamní a umělecké tvorby, s.r.o.
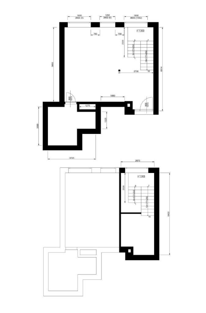
Malometrážní loftový byt je navržen jako moderní a útulné bydlení pro jednotlivce nebo pár. Byt má dvě podlaží – v horním patře se nachází ložnice, která poskytuje klid a soukromí. Spodní část tvoří obývací prostor propojený s kuchyní, kde se odehrává každodenní život. Součástí interiéru je i malá technická místnost. Do bytu proniká dostatek denního světla díky třem francouzským oknům sahajícím od podlahy ke stropu. Celkový návrh je inspirován osobností Jana Wericha, jeho humorem, moudrostí a láskou k divadlu. Atmosféra bytu připomíná divadelní scénu – je originální, hravá a zároveň elegantní. V interiéru se objevují drobné odkazy na Werichův život a dílo. Design kombinuje moderní prvky s nádechem historie, což vytváří jedinečný charakter prostoru. Byt působí jako malý svět plný příběhů a inspirace.




