Alexandra Šmídová
Střední škola designu interiéru Kateřinky – Liberec, s.r.o.
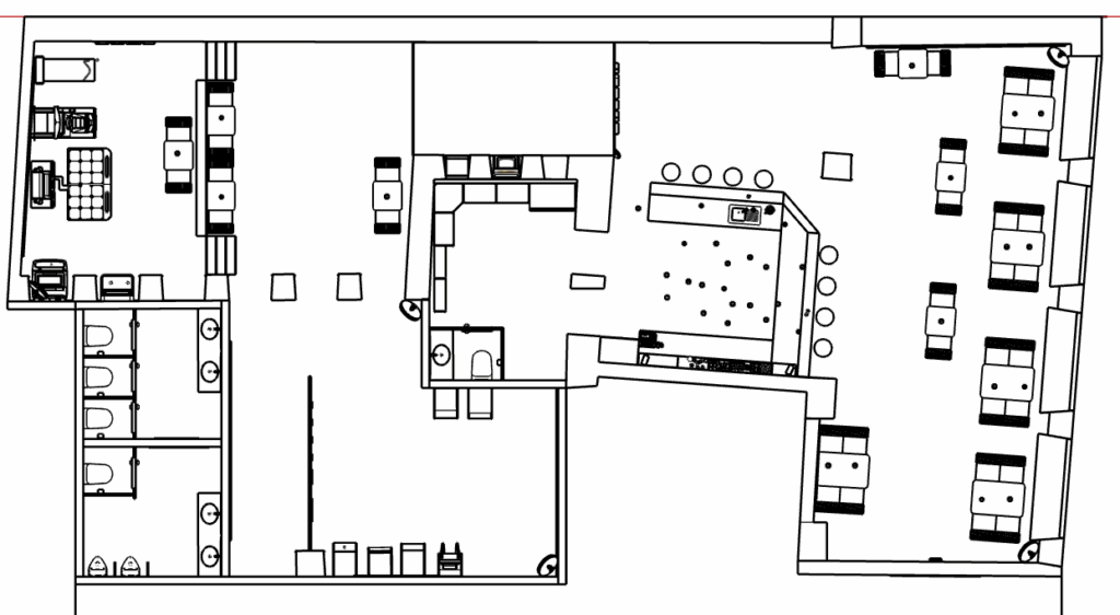
Návrh představuje interiér arkádového baru, který v Liberci ani jeho okolí dosud chybí.
Prostor je navržen pro Palác Dunaj jako nový typ zábavního místa, které kombinuje nostalgii 80. let s prvky současného designu.
Výrazné neonové prvky, šachovnicová podlaha, ambientní LED osvětlení a kontrast černé a červené barvy dotvářejí silnou vizuální identitu.
Herní automaty, centrální bar a pohodlné posezení vytvářejí atmosféru, která osloví fanoušky retro kultury i současného městského stylu.




