Tereza Bečvářová
SOŠ obchodu, užitého umění a designu, Nerudova 33, Plzeň
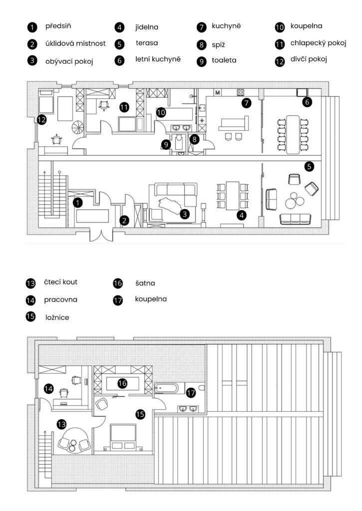
Tato práce se zabývá rekonstrukcí staré stodoly a proměnou jejího využití na moderní rodinný dům. Zadání vyžadovalo nejen dispoziční úpravy, ale i nové funkční řešení celého prostoru. Objekt stojí na kraji malé vesnice a zaujme svou původní dřevěnou konstrukcí, kterou jsem se rozhodla zachovat. V návrhu kombinuji rustikální prvky, jako jsou přiznané trámy, s moderním designem, přírodními materiály a velkými prosklenými plochami, které propojují interiér s okolní krajinou.
Konstrukční výzvou bylo například vytvoření částečného patra tak, aby v centrální části zůstal vysoký strop a zároveň vznikl klidný prostor pro ložnici a pracovnu. Dům je určen pro čtyřčlennou rodinu a nabízí vzdušné, praktické a osobité řešení s důrazem na detail a atmosféru. Projekt odráží můj osobní vkus a přístup k prostoru jako místu, které má nejen fungovat, ale i inspirovat. Vyniká citlivou prací s původní strukturou a netradičním dispozičním řešením.




