Tereza Červenková
VOŠ a SPŠ Volyně
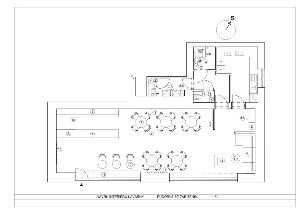
Tématem mé maturitní práce je návrh interiéru kavárny. Konceptuálně se nejedná o standardní kavárnu, ale bistro-kavárnu. Kromě klasického kavárenského posezení nabízí interiér pultový prodej. Zákazník vstoupí, nakoupí a odejde, aniž by narušil chod kavárny. V prostoru jsou dominantní velká okna, jejichž parapet jsem částečně upravila pro sezení a zvětšila tak kapacitu kavárny. V interiéru je kladen důraz na zemitější tóny dubového dřeva v kombinaci
s industriálními prvky a materiály, jako je betonová stěrka na stěně za pultem, černé kovové prvky a osvětlovací tělesa nebo pracovní deska v imitaci břidlice. Horizontální dekor pultu je vyroben z epoxidové pryskyřice lahvově zelené barvy, která mění své zabarvení v závislosti na intenzitě a typu osvětlení. Glazovaná slinutá dlažba béžového odstínu na podlaze působí příjemně a nenásilně. Tvarovým oživením interiéru jsou nástěnné kovové věšáky nepravidelného tvaru a podlouhlý mechový obraz na hlavní stěně. Temně černé kulaté vypínače a kryty zásuvek jsou ideálním doplňkem industriálního interiéru.




