Tereza Žigová
Střední škola nábytkářská a obchodní Bystřice pod Hostýnem
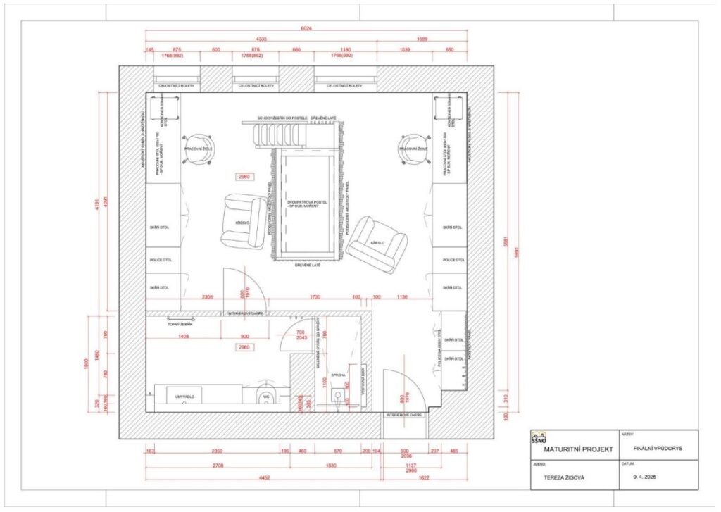
Projekt interiéru studentského internátního pokoje s koupelnou, který byl zpracován jako maturitní práce, vychází z moderního a funkčního konceptu studentského bydlení. Interiér je navržen pro dvojici studentů, kteří potřebují dostatek soukromí, úložných prostor i pohodlné pracovní zázemí. Barevná paleta kombinuje světlé tóny s kontrastními tmavšími akcenty, čímž podporuje příjemnou a klidnou atmosféru vhodnou ke studiu i odpočinku.
Dominantním prvkem pokoje je atypická dvoupatrová postel, která zároveň vytváří optické rozdělení prostoru a přispívá k většímu pocitu soukromí. Prostor je dále vybaven velkým pracovním stolem, ergonomickým sezením a praktickými úložnými skříněmi s otevřenými policemi. Významným prvkem návrhu jsou akustické panely a celostínící rolety, které zajišťují kvalitní spánek i akustickou pohodu.
Koupelna byla navržena v minimalistickém stylu, s důrazem na jednoduché linie a funkčnost. Nachází se zde kruhové podsvícené zrcadlo, úsporné LED osvětlení, podlahové topení a praktické úložné prostory. Celý návrh respektuje požadavky na moderní studentské ubytování a přináší esteticky i funkčně vyvážené řešení, které podporuje příjemné prostředí pro každodenní život studentů.




