Jakub Svoboda
SOŠ obchodu, užitého umění a designu, Nerudova 33, Plzeň
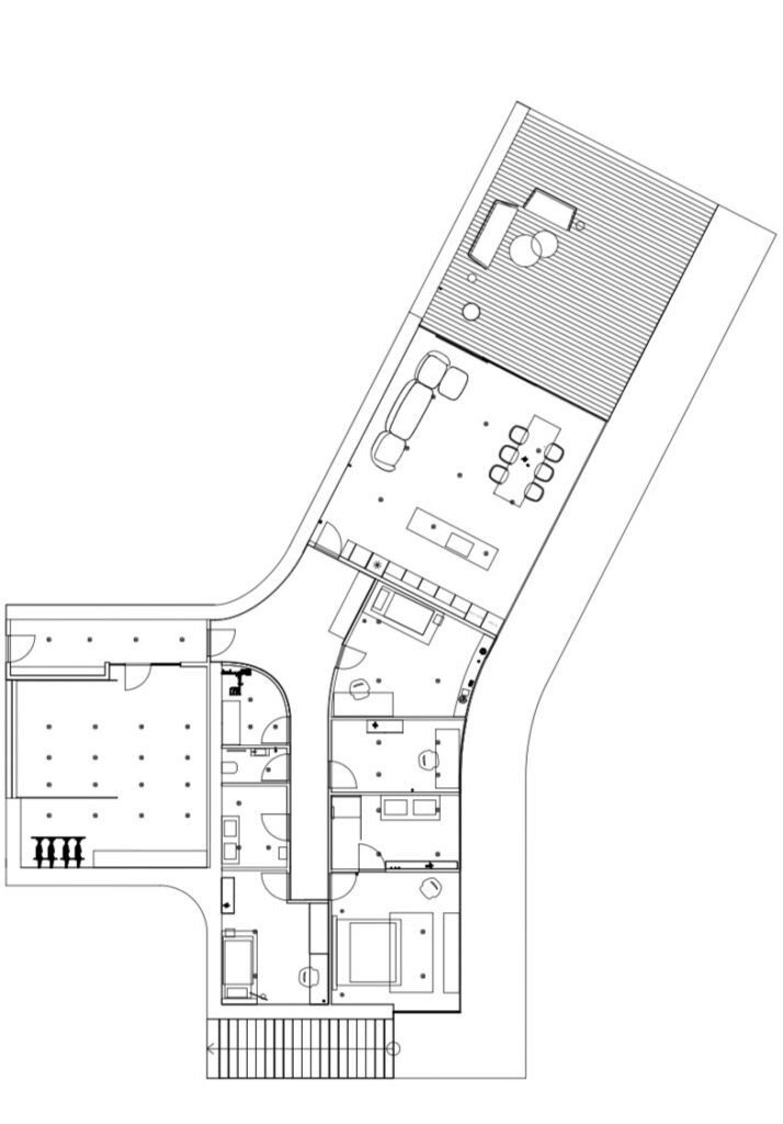
Projekt propojuje design nástěnného svítidla Laitiqon a koncept minimalistického domu Laitiqoasa, částečně zapuštěného do svahu na ostrově Samos. Svítidlo z betonu a recyklovaného skla podporuje intimitu prostoru a přirozeně se integruje do interiéru i exteriéru. Architektura domu využívá zrcadlové sklo a přirozený terén k vytvoření téměř neviditelného objektu v krajině. Oba prvky fungují v dialogu – světlo a
architektura v rovnováze. Práce vznikla jako školní projekt na téma “neviditelná architektura”. Dům Laitiqoasa je částečně zapuštěn
do svahu s výhledem na moře a reaguje na přirozené podmínky ostrova Samos. Zrcadlová skla odrážejí okolní přírodu a činí dům vizuálně neviditelným. Interiér je laděn do světlých tónů, s důrazem na otevřenost, funkčnost a propojení s exteriérem. Součástí projektu je i svítidlo Laitiqon, navržené jako modulární objekt z betonu a recyklovaného skla. Slouží jako světelný prvek s nenápadným výrazem, který umocňuje prostor a jeho atmosféru. Použité materiály – beton, sklo, kov – vycházejí z principů trvalé udržitelnosti a jednoduchého, čitelného designu. Celý návrh staví na harmonii technického a organického přístupu. Projekt poukazuje na možnosti tichého, respektujícího přístupu k přírodě, ve které je architektura přítomna, aniž by dominovala.




