Vít Kittner
Střední škola designu interiéru Kateřinky – Liberec, s.r.o.
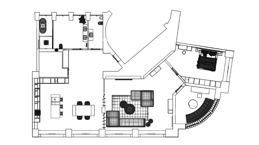
Soukromý interiér v prvním patře objektu Palác Dunaj na Soukenném náměstí v Liberci.
Interiér je inspirován albem Blond – Frank Ocean.
Cílem bylo zachytit emoce a zvuk celého hudebního projektu a tento pocit přenést do obytného prostoru. Je to ideální prostor pro hudebně a výtvarně založené osoby plný inspirace a tvůrčí nálady.




