Amálie Kolátorová
MICHAEL – SŠ a VOŠ reklamní a umělecké tvorby, s.r.o.
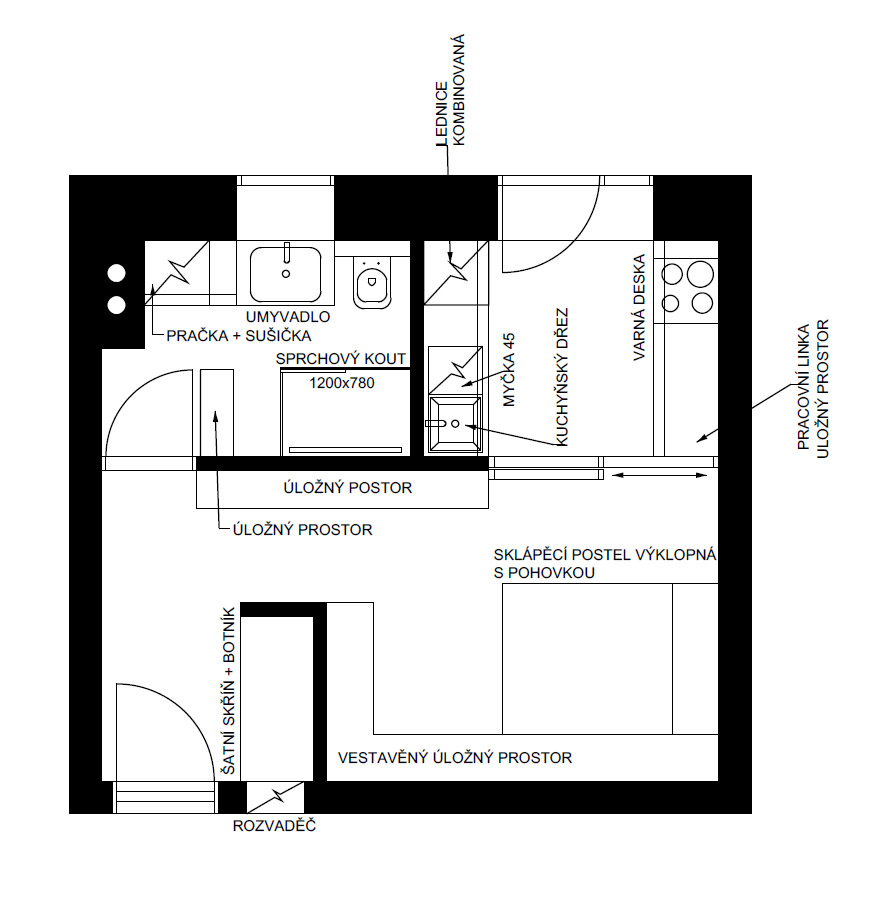
Zadáním tohoto projektu je návrh interiéru malometrážního bytu v bytovém komplexu, který se nachází v Praze, v městské části Karlín. Byt je určen pro středně a dlouhodobý pronájem.
Inspirací pro tento návrh je dílo Jiřího Trnky, a to především skrze barevnost a celkovou estetiku, která je v Trnkových ilustracích patrná. Návrh pracuje s jemnými odstíny světle zelené, žluté, modré a také s výraznějšími tóny červené, tmavě zelené a tmavě modré. V interiéru jsou využity Trnkovy samotné originální ilustrace – buď ve formě tapety, nebo jako skryté prvky na vnitřních stranách vestavěných skříní.
Cílem projektu bylo vytvořit komfortní byt s příjemnou atmosférou, který – i přes to, že Trnkova tvorba je často spojována s dětským publikem – bude plně vyhovovat dospělému člověku.



