Melisa Palochová
MICHAEL – SŠ a VOŠ reklamní a umělecké tvorby, s.r.o.
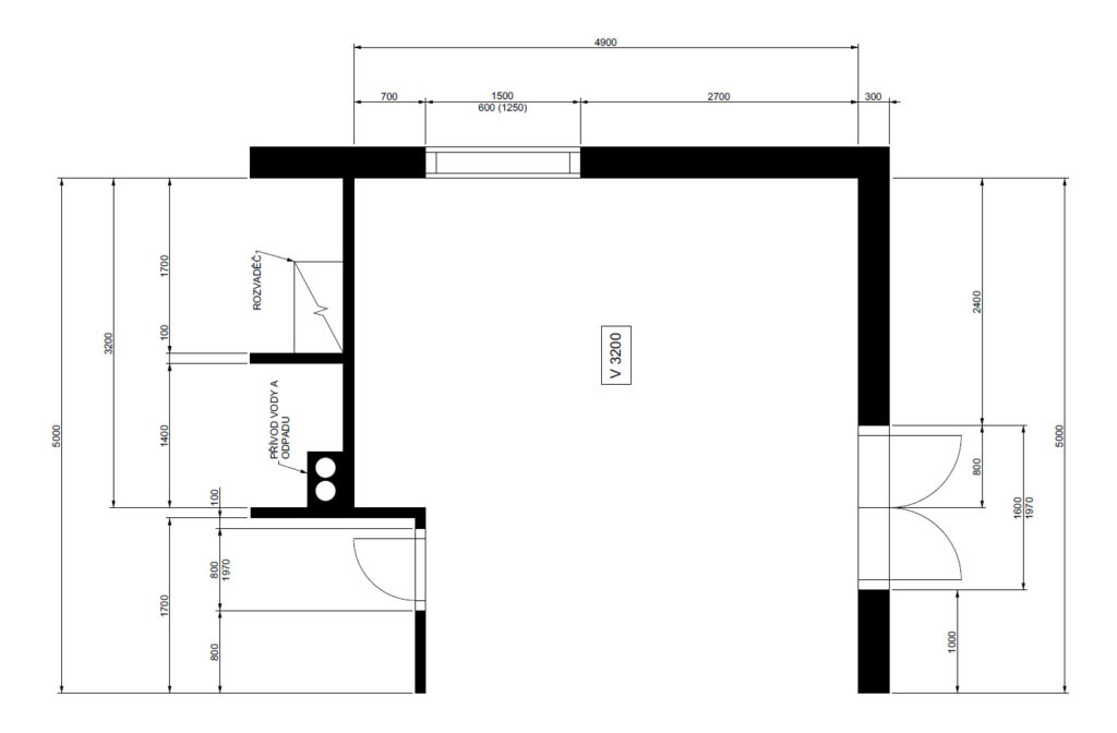
Zadáním klauzurní práce byl návrh interiéru kuchyně. Klientem je mladý nezadaný muž, který rád hostí přátele u večeře. Část místnosti o rozměrech 4 900 × 3 200 mm s výklenkem má přirozený zdroj světla v okně o šířce 1 500 mm. Na kuchyň navazuje obývací část, jenž má dva vstupy – klasické dveře a prosklený vchod do exteriéru.
Návrh je inspirovaný německou školou Bauhaus, známou pro svůj důraz na funkčnost, minimalismus a propojení architektury s řemeslem. Motto Bauhausu „méně je více“ se projevuje v jednoduchosti a čistotě designu. Čistý bílý interiér akcentuje barvy a geometrické tvary, které charakterizují tento styl Bauhausu.
Cílem bylo vytvořit praktický a otevřený prostor, který umožní hostiteli být v kontaktu s hosty i během vaření. Pracovní deska je z odolného umělého kamene bez spár, dvířka jsou lakovaná v matném provedení a na podlaze je moderní betonová stěrka. Výsledkem je moderní a funkční interiér, který podporuje společenský charakter klientova života.




