Tereza Cihelková
Vyšší odborná škola textilních řemesel a Střední umělecká škola textilních řemesel
Tiny house Nidus se nachází v zalesněném horském prostředí v Ballynahinch v Irsku. Tento typ bydlení je oblíbený zejména u lidí, kteří rádi cestují a žijí dobrodružným životem. Horské okolí Ballynahinchu je charakteristické dlouhými kopcovitými svahy, protkanými potůčky a jezery. Představuje ideální místo pro páry i jednotlivce hledající klid a spojení s přírodou.
Na stěnách tiny house budou fasádní palubky ze sibiřského modřínu s pojistnou hydroizolací. Tepelnou izolaci zajišťuje minerální vata. Střecha bude pokrytá falcovanou hliníkovou krytinou.
Hospodaření s odpadní vodou je řešeno pomocí kořenové čističky. Tiny house je navržen jako off-grid systém – elektřinu zajišťují solární panely umístěné na střeše. Má vlastní nádrž na pitnou vodu a bojler na její ohřev. Pro vytápění a dodatečnou izolaci jsem zvolila uhlíkové fólie a přímotopný radiátor.
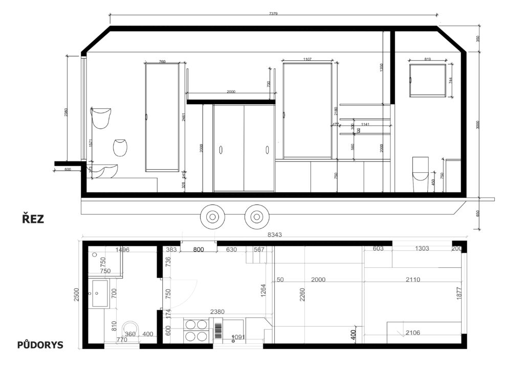
Interiér tvoří jeden prostor s patrem pro spaní, koupelna je umístěna odděleně na konci dispozice. Využity jsou především přírodní materiály jako dřevo či marmoleum, hlavní roli hraje okolní příroda.




