Aneta Malecová
AVE ART Ostrava – vyšší odborná škola, střední umělecká škola a základní umělecká škola, s.r.o.
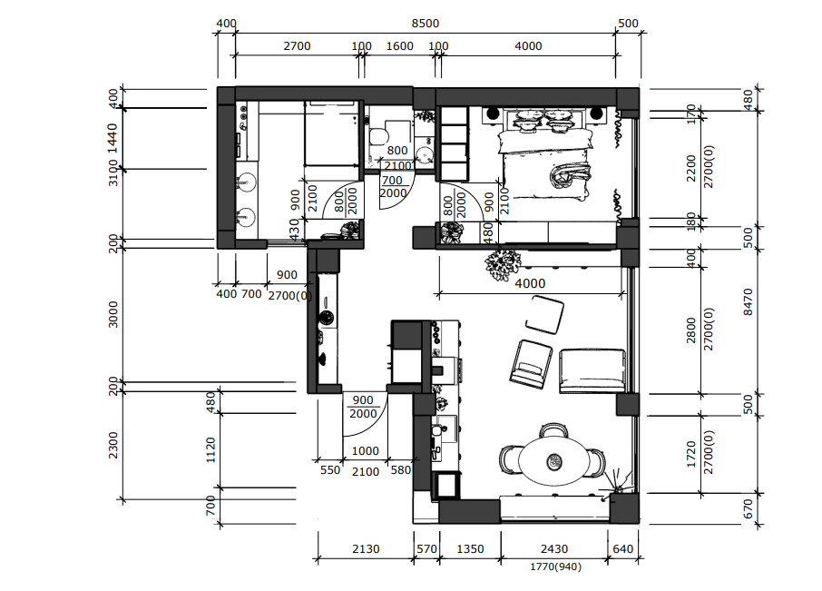
Zadáním maturitní práce byl návrh obytného prostoru. Požadavkem bylo zrekonstruovat stodolu na obytný
prostor pro starší pár. Obytný prostor je situován na pozemku společně s rodinným domem, garáží a
navazující zahradou s výhledem na jezírko. Zadání není omezeno přístavbou ani kompozičním řešením.
Jedním z požadavků je ,aby byl prostor bezbariérový a zůstaly zachovány nosné sloupy.
Cílem je vytvořit útulný, funkční a zároveň esteticky příjemný prostor, který bude respektovat potřeby a
pohodlí seniorů. Vytápění domu jsem zvolila podlahové.
Dominantou interiéru jsou trámy, které jsou zachované ze staré stodoly.
Interiér je inspirován skandinávským stylem, známým svou jednoduchostí a důrazem na přírodní materiály.
Vzhledem k historickému charakteru samotné stodoly bude návrh reflektovat starší, ale stále moderní vzhled,
který zachová autenticitu a přírodní kouzlo prostoru. Použité materiály a barvy budou kombinovat teplé,
přirozené odstíny dřeva, hodně zeleně, jemné tóny bílých a šedých barev a funkční, ale estetické prvky, které
zajistí pohodlí a útulnost pro starší pár. Osvětlení je v mnoha případech řešeno pomocí bodovek.




