Natálie Stuchlíková
Akademie Světlá nad Sázavou, střední škola a vyšší odborná škola
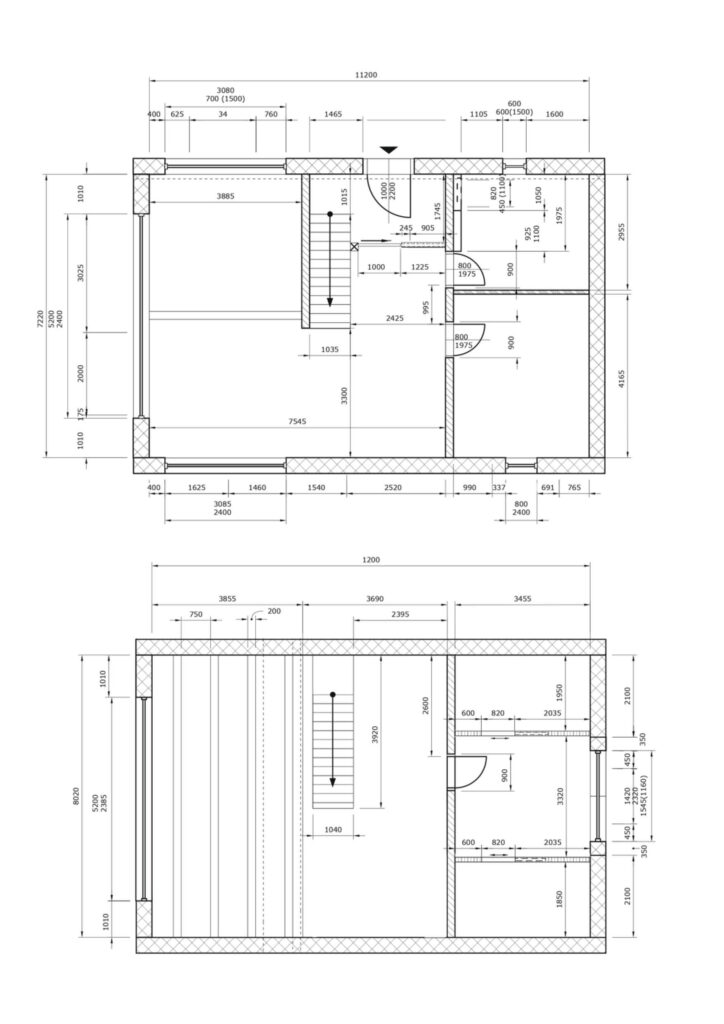
Zadáním maturitní práce bylo navrhnout interiér rekreačního objektu s dispozicí 3+kk a sedlovou střechou. Na základě výkresu navrhnout dispoziční řešení interiéru, zvolit materiály, styl a vybavení. Bylo možné upravovat nenosné příčky, interiérové dveře i schodiště dle vlastního návrhu, ale umístění oken a vstupních dveří muselo zůstat zachováno.
Můj rekreační objekt se nachází nedaleko česko-německých hranic na Šumavě a je určený až pro 4 osoby. Interiér vznikl kombinací více stylů, jako například japandi nebo industriální, ale nejvíce se zde odráží styl skandinávský.
Tento objekt slouží ke krátkodobému pobytu, rekreaci a odpočinku. Mým cílem bylo vytvořit prostor, který navozuje pocit klidu, čistoty a jednoduchosti, je zároveň praktický, vyvážený a co nejvíce propojený s přírodou.
Tomu jsem se přiblížila hned při první velké změně a tou bylo probourání a zvětšení oken v té nejprostornější části objektu, která si podle mě zasloužila co nejvíce denního světla. Nyní nabízí krásný pohled do kopcovité šumavské krajiny.
Dispozici prvního patra jsem zanechala téměř nezměněnou. Ve druhém patře jsem pomocí přistavěných příček rozdělila jeden velký pokoj na tři menší části (koupelnu, ložnici a šatnu/technickou místnost). Většina stěn je obložená laminovanými dřevotřískovými deskami. Mezi nejvýraznější barvy patří cihlová červená, která se objevuje v několika podobách napříč celým interiérem. Je doplněná o světlé barevné odstíny v kontrastu s matnou černou, která je použita na kovové části.




