Lukáš Chlad
Akademie Světlá nad Sázavou, střední škola a vyšší odborná škola
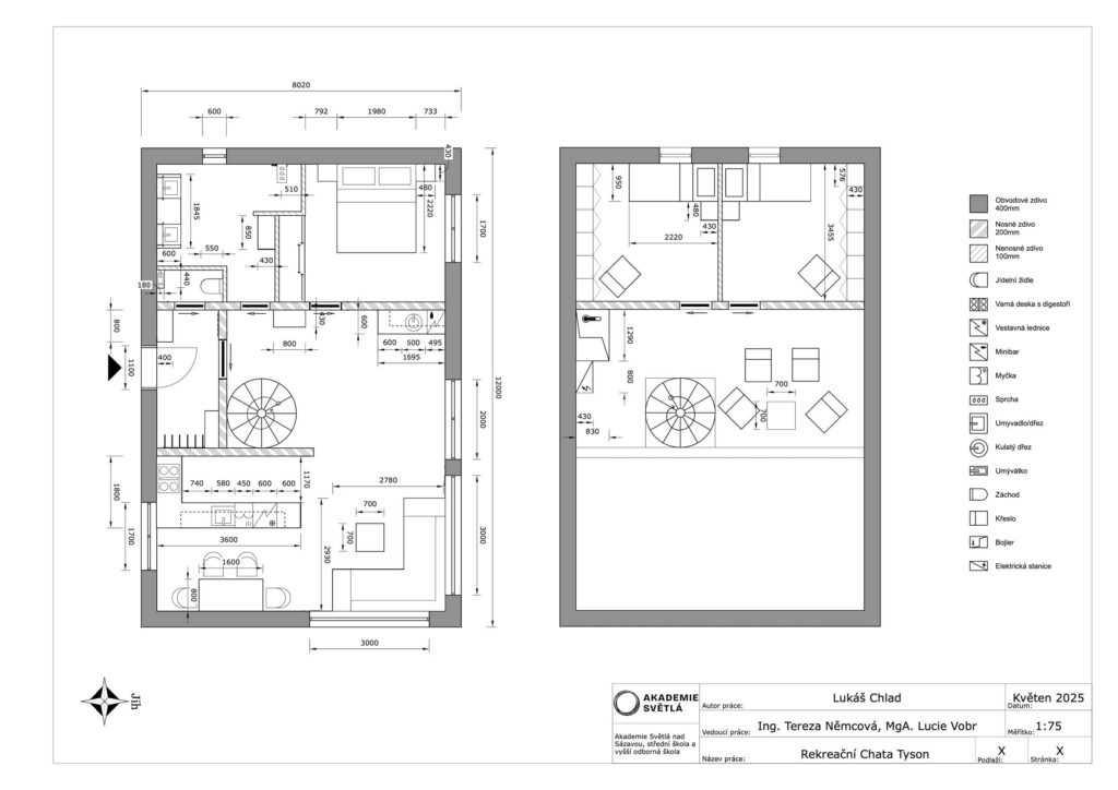
Chata je určena pro plnohodnotné účely většího rekreačního objektu. Dům má obdélníkový půdorys se sedlovou střechou, dispozice 3+kk. Velké okna krásně prosvětlují celý interiér a zároveň poskytují přímé spojení s venkovní terasou. Centrální místnost tvoří obývací pokoj, který je spojen s kuchyní. Tento prostor je otevřen do krovu, čímž dodává pocit vzdušnosti celému domu. Ze zádveří je přístupná prostorná koupelna s toaletou a schodiště do podkroví. V podkroví je umístěna odpočinková část domu s kinem.
Interiér mé rekreační horské rekreační chaty je navržen v duchu High-tech estetiky, která staví na technologické jednoduchosti, geometrické čistotě a efektivním využití prostoru. Celý objekt je sjednocen světelným konceptem založeným na LED páskách, které tvoří hlavní zdroj osvětlení a zároveň zvýrazňují architektonické linie i nábytkové detaily. Světlo se dynamicky mění podle zón, čímž podtrhuje atmosféru a funkci jednotlivých částí interiéru.
Barevná paleta interiéru vychází z principu RGB – základních složek barevného modelu využívaného v digitální technologii (Red, Green, Blue). Tyto tři barvy se promítají do podsvícení a akcentů v jednotlivých částech interiéru, například: zelená v koupelně, modrá v kuchyni a červená v ložnici. Tento koncept nejen odkazuje na technologické prostředí, ale zároveň pomáhá prostorově a pocitově odlišit jednotlivé zóny.
V interiéru se propojují kontrastní materiály a barvy – převládají odstíny bílé, černé a šedé, doplněné právě RGB akcenty. Nábytek je tvarově výrazný, často se zaoblenými hranami a prvky futuristického designu. Dispozice objektu zahrnuje tři ložnice, centrální obytný prostor s kuchyňskou a jídelní částí a koupelnu s integrovanou pračkou, která je zasazena do neobvyklého tvaru koupelnové skříňky. Interiér je navrhnut z materiálů, které jsou časté pro styl High-tech, jedná se o sklo, plast, plexisklo, kov a MDF desky, které se dají velice dobře ohýbat.






