Růžena Hajšmanová
SOŠ obchodu, užitého umění a designu, Nerudova 33, Plzeň
Zadání vycházelo z požadavku vytvořit vizualizace kanceláří vlastního interiérového studia, které mají být
osobité a odlišné od běžných pracovních prostor. Cílem bylo navrhnout originální interiér bez nutnosti
použití drahého nábytku, s důrazem na nápad a charakter prostoru, nikoli pouze na sladění barev či
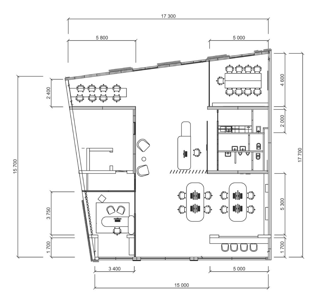
materiálů. Požadováno bylo zahrnout recepci, kancelář ředitele, zasedací místnost pro 9 osob, pracovní
místa pro 8 zaměstnanců, showroom s ukázkou materiálů a místo k občerstvení.
Návrh zahrnuje všechny tyto prostory a je koncipován pro 8 pracovníků, ředitele a návštěvy či zákazníky.
Zaměřila jsem se na nadčasovost a vytvoření příjemného prostředí. Použila jsem kombinaci cihlových,
bílých a šedých barev s přírodními materiály. Hlavním prvkem je dubové dřevo, které prostory zútulňuje,
doplněné dřevěnými obklady od firmy Jap. Minimalismus a čistota designu jsou podpořeny použitím
akustických panelů, které zajišťují komfortní prostředí i ve veřejných částech kanceláří.



