Justýna Bláhová
SOŠ obchodu, užitého umění a designu, Nerudova 33, Plzeň
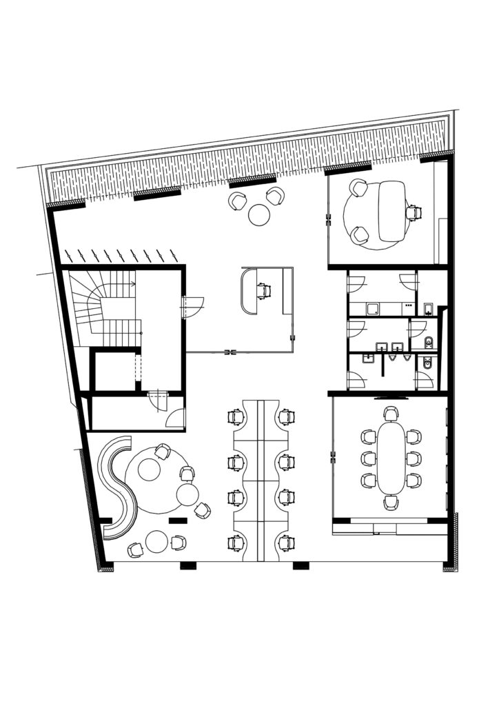
Návrh interiéru kanceláří designového studia klade důraz na funkční uspořádání, jednoduchost a vizuální klid. I přes menší rozměry je prostor členěn do několika zón: recepce, hlavní pracovní část, kancelář ředitele, jednací místnost, kuchyňka, čekárna a showroom. Dispozice byla navržena tak, aby podpořila přirozenou komunikaci mezi členy týmu a současně vytvořila prostředí vhodné pro soustředěnou práci.
Použité přírodní materiály a neutrální barevnost vytvářejí harmonické prostředí, které neruší a působí profesionálně. Celkový design je minimalistický, bez zbytečných prvků, s důrazem na detail a čisté linie.
Součástí návrhu je i několik autorských zásahů – například vlastní návrh výstavního showroomu a designové houpadlo, které do prostoru vnáší hravost i originalitu. Výsledkem je interiér, který odpovídá potřebám moderního kreativního studia a zároveň vytváří příjemné zázemí pro práci i prezentaci.



