Marie Neumannová
Střední škola designu interiéru Kateřinky – Liberec, s.r.o.
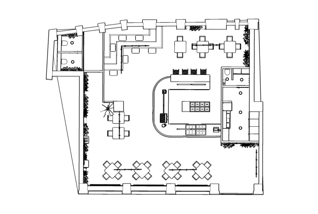
Y O G Y je návrh moderního jogurtového baru v paláci Dunaj v Liberci. Prostor nabízí návštěvníkům možnost si namíchat vlastní jogurtovou misku s bohatým výběrem doplňků – čerstvé ovoce, oříšky apod.
Cílem bylo vytvořit místo, které bude zdravou alternativou ke klasickým občerstvením. Interiér stojí na kontrastu surového dřeva, betonu a kovu. Vznikl tak prostor s minimalistickou estetikou a přirozeným světlem.




